元箱根芦ノ湖保養所
物件概要
| 物件番号 | 202410001 |
|---|---|
| 物件所在地 | 神奈川県足柄下郡箱根町元箱根 |
| 物件種別 | 保養施設 |
| 最寄り駅 | 箱根湯本駅より15km |
| 土地面積 | 2258.55u |
| 地目 | 宅地・山林 |
| 用途地域 | 第二種低層住居専用地域 |
| 建蔽率 | 40% |
| 容積率 | 80% |
| 高度地区 | 第二種観光地域・自然公園法(第二種特別地域 B地区 建蔽率20% 容積率40%) |
| 建物構造 | 鉄筋コンクリート造 |
| 建物面積 | 690.02u |
| 築年月 | 1989年5月 |
| 引渡日 | 相談 |
| 備考 | ※温泉権は新規申し込みが必要 ※確定測量実施中 |
| ※ | 本物件について、当サイト掲載内容と現況に相違がある場合は現況を優先と致します。 |
物件画像
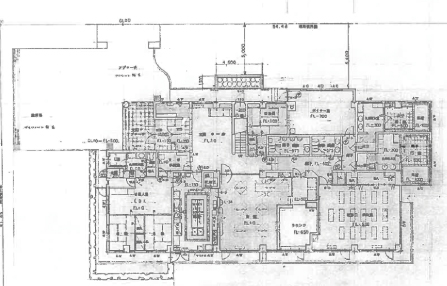
| 間取図1階 |
|---|
![]() |
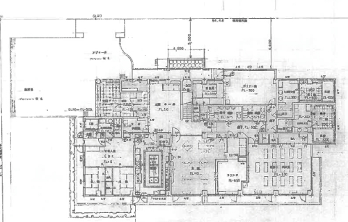
| 間取図2階 |
|---|
![]() |










