東京23区を中心に首都圏を中心で不動産取引、不動産コンサルタント業を行う会社です。土地、ビル、マンションの買取りも力を入れております。
中央区日本橋富沢町売地(ビル用地)
物件概要
物件番号
1807001
物件所在地
東京都中央区日本橋富沢町
物件種別
売地
最寄り駅
都営新宿線「馬喰横山」駅徒歩2分
土地面積
57.02u(公簿)
土地権利
所有権
地目
宅地
用途地域
商業地域
建ぺい率/容積率
80%/600%
現況
ビルあり
引渡し
接道状況
北8m区道
備考
ポイント
★前面道路8m
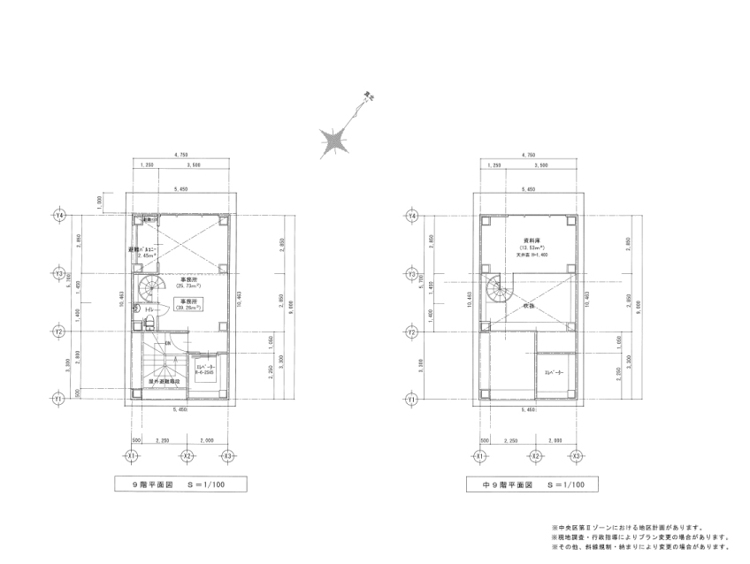
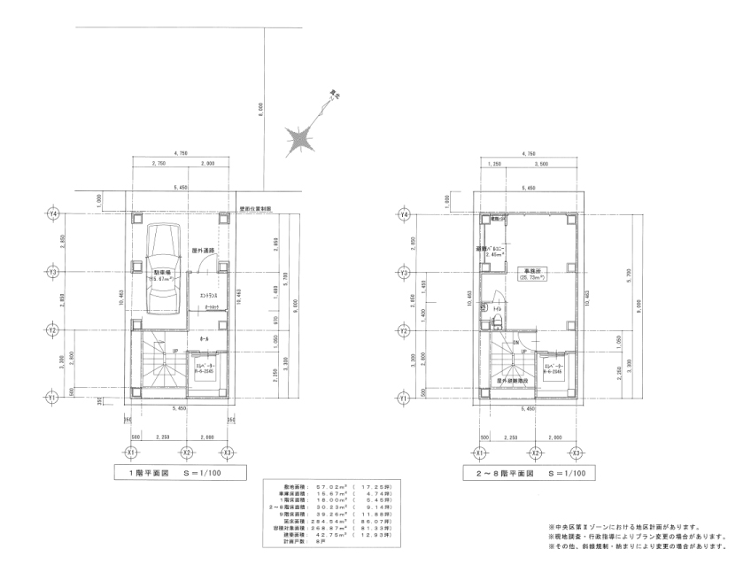
★9階建新築事務所プランあり!
ご興味がある方は諸条件ご相談下さい。
※
本物件について、当サイト掲載内容と現況に相違がある場合は現況を優先と致します。
物件画像
新築プラン1F〜8F
新築プラン9F
<< 前のページに戻る
MENU
売買物件( マンション・一戸建・土地 )
賃貸物件( ビル・マンション・アパート )
投資物件( ビル・マンション・アパート )
会社概要
個人情報保護方針( プライバシーポリシー)
トップページ
売買物件
賃貸物件
投資物件
会社概要
個人情報保護方針